LaSea - THE SURFTOWN TAHARA

第2期宅地分譲中 ※建築条件付き
LaSea - THE SURFTOWN TAHARA - 海のそばに暮らす。人生の「“質”に投資する」という選択。
第一期大好評につき販売終了しました。
モデルハウス
見学申込み
資料請求・
お問い合わせ

LaSeaについて

VALUES
LaSeaが選ばれるポイント

  1. 1自由設計で
    理想の住まいを実現
    シングルライフ・ファミリーライフ、将来的な移住を見据えた二拠点生活など多様なライフスタイルに合わせて自由にプランニングできます。
  2. 2海までわずか5分の場所
    海を見て、波を感じる。乗っても、歩いても、眺めてもいい。仕事前や休憩にも、時間に縛られず海と共に過ごすライフスタイル。
    ⚫︎高台にあり、防災マップでも津波災害警戒区域外で安心して暮らせる環境です。
  3. 3豊かな食材と
    自然に恵まれた環境
    全国トップクラスの農業生産や臨海工業地域など、多様な産業活動が活発な愛知県田原市。豊富な食材が生活を豊かにします。
  4. 4暮らしを支える利便性
    生活に必要な病院、マーケット、コンビニ、公共施設、学校が10km圏内あり、移住・子育て世帯にも人気のエリアです。
  5. 5各主要都市から
    ほど良いアクセス
    豊橋市まで23km、浜松市まで50km、名古屋市まで92km、静岡市から127kmとなっており、東海圏の主要都市からいずれも2時間程度。
  6. 6質の高い投資としての
    ポテンシャル
    東京から約2時間の距離に位置する千葉県一宮町は、2020年東京オリンピックのサーフィン会場となったことから、全国的に注目を集めました。地価公示(2022年時点)によると、2013年比で最大約160%の地価上昇が見られるエリアもあります。周辺には飲食店や宿泊施設の新規開業が相次いでおり、今後も地域のさらなる発展が期待されています。2025年9月にワールドサーフリーグ世界大会を予定している愛知県田原市もポテンシャルがあります。

LOCATION
所在地について

名古屋から約2時間
太平洋ロングビーチの
波音を日常に。
常春の気候と言われる、愛知県田原市。
1年を通して良質な波が打ち寄せ、サーフィンの国際大会などが開催されている田原市では、海岸沿いのシャワー整備や駐車場の設置など、市を挙げて海に親しむまちづくりに取り組んでいます。

LaSea
暮らしを
実現するまで

土地面積及び販売価格

エリアマップ

空の青に映える白い壁、艶やかな緑の芝、趣のあるパームツリーなどが特徴的なカリフォルニアデザインのサーフハウスは、
ライフスタイルや家族構成、好みに合わせた自由設計から、LaSeaが用意したデザインアイディアをベースに相談できます。
Design Idea
LaSeaからのデザインアイディア
※仕様の打ち合わせにより価格の減額・増額が可能
スクロールまたはフリック
Design idea 01
間取り:
1LDK+HOBBY ROOM
延床面積:
76.19㎡(23.05坪)
1LDKを基本とした平家造りのプラン。DINKsをはじめとした、ライフスタイルを重視するアクティブな夫婦層に向けたタイプで、リビングからデッキスペースへとつながる一体感あるデザインが心地よい。
Design idea 02
間取り:
2LDK+GUESTROOM+HOBBYROOM
延床面積:
131.67㎡(39.83坪)
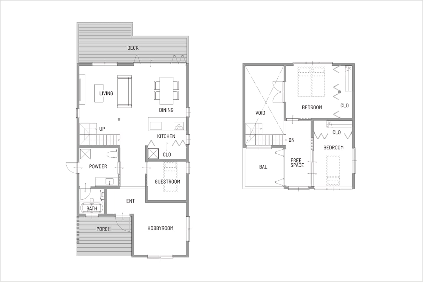
2LDKを基本としたファミリー層向けの2階建てプラン。小さなお子様がいる子育て世代や2世代家族に最適なプランで、ゲストルームとしての利用も可能な開放感のあるデザインが特徴。
Design idea 03
間取り:
2LDK+HOBBY ROOM
延床面積:
115.93㎡(35.07坪)
2LDKを基本とした2階建てプラン。すべての住宅の吹き抜けがロングビーチ側に向いており、デッキから心地よい南風が感じられます。 全区画の中でも高台に位置しているため、眺望も良好です。
スクロールまたはフリック

設計士と一対一で相談し、建物の細部まで決定。その後、信頼できる地元の建築業者が、描いた理想を一つひとつ丁寧に形にしていきます。
完成した住まいは、単なる「家」ではなく、長くあなたの暮らしを支える資産へ。
上質な時間を積み重ねられる空間で、ここにしかない価値ある日々が始まります。

  • 施主・Kさん
    60代
    10代の頃から長年サーファーとして通い続け、サーフィンの歴史と文化によってつくられるこのまちの変遷を間近で見てきました。全国各地でサーフトリップを経験しましたが、このまちで暮らすことでしか感じられない魅力があり、サーフィンがこのまちをつくり上げてきたとさえ感じています。過去も現在も変わりゆくこのまちの全てが私のライフスタイルの一部に溶け込んでいると感じ、タイミングも相まって念願の住居購入に至りました。太平洋ロングビーチまで徒歩5分という立地は、朝起きてすぐに波乗りを楽しめる喜びをもたらし、移動時間のストレスからも解放され、毎日が待ち遠しい日々です。「No Surf No Life」を掲げ、サーフィンと共に生きてきた私にとって、人生を楽しむ場所としてこれ以上の場所はありません。
  • 施主・Yさん
    30代
    卒業旅行でカリフォルニアに行ったことがきっかけでサーフィンを始め、以来日本だけでなく海外でもサーフィンを楽しむようになりました。そんな私が選んだ新居は、海まで徒歩5分のLaSea。海まで歩いて行ける近さにありながら、ハザードマップ上でも安全性が高いとされる立地が即決の理由です。これまでは時間とお金をかけて海へ通う日々で、仕事との兼ね合いなどで趣味を断念することも度々ありました。LaSeaに移住してからは出勤前にビーチで犬の散歩をしながら波の状態を確かめ、帰宅後にも気軽にサーフィンができる環境です。平日の人が少ない時間帯に波を楽しめることや、波の状態を自分の目で見て、すぐにサーフィンが始められる環境、そして帰路を気にせずお酒が飲めることがこの立地ならではの魅力だと感じています。

土地概要

スクロールまたはフリック
土地販売区画数 4区画(区画名A-1、A-2、B-1、E-6)
土地面積
及び販売価格
A-1:247.82㎡(74.96坪)9,669,840 円
A-2:234.20㎡(70.84坪)8,996,680 円
B-1:244.79㎡(74.04坪)9,403,080円
E-6:251.51㎡(76.08坪)8,444,880 円
地目 宅地 ※建築条件付土地
用途地域 指定なし
区域区分 市街化調整区域
  • ※開発協議成立済み(令和6年1月24日付 23田建第8-3号)
分譲後の権利形態 所有権
建蔽率・容積率 建蔽率60%・容積率200%
高さ制限
最高の高さ 平屋7m/ 2階建て10m
軒の高さ 平屋6m/ 2階建て7m
その他制限 有 詳細は株式会社バンブックにお問い合わせください
駐車場スペース
取引様態 株式会社バンブックを売主とする所有権売買
地区計画 弥八島地区計画

建物概要

構造・規模 A-1,A-2,B-1区画:木造2階建
E-6区画:木造平屋建
建築規約 地区計画及びまちづくりルールに準ずる
設計・監理 建築条件付きで株式会社バンブックが設計
  • ※株式会社バンブック指定業者の請負工事となります
  • ※原則、土地売買契約締結後90日以内に、建物を建築するため設計・監理契約を締結し、あわせて本件設計契約締結後180日後までに 売主の指定する工事業者と工事請負契約を締結して頂くことを条件として販売します。
  • ※土地売買契約締結後90日以内に設計・監理契約ができなかった場合には、契約は自動的に解除され、受領済みの金員は無利息にて速やかに返還します。
  • ※設計が完了した後に、建築条件が満たされず、土地売買契約が白紙となった場合でも、設計料は別途申し受けます。

住所:
愛知県田原市高松町弥八島73番
車:
豊川I.C.より約1時間15分(65㎞)
電車:
豊橋鉄道 渥美線 三河田原駅より車で約15分(9㎞)
ブランドサイトはこちら